GXF系列管道斜流式通風機(直筒形)
文章來源:斜流式風機 作者:斜流式風機小編 發布時間:2017-02-21 10:12:02 瀏覽次數:18951
[導讀]:GXF系列斜流式通風機是一種新型低噪高效節能型斜流式通風機,斜流式通風機流量大于離心式風機,全壓高于軸流式風機,體積小于離心式風機。風機可廣泛應用于民用建筑、工礦企業、賓館、飯店、博物館、體育館等通風換氣場所,特別適用于管道安裝空間較小的地方。▶ 語音朗讀
GXF系列斜流式通風機,是一種新型低噪高效節能型斜流式通風機,斜流式通風機流量大于離心式風機,全壓高于軸流式風機,體積小于離心式風機。該風機通過了模擬機的實驗研究,采用新的葉型及葉片,從而得到了更大的流量和壓力,提高了風機的效率。風機可廣泛應用于民用建筑、工礦企業、賓館、飯店、博物館、體育館等通風換氣場所,特別適用于管道安裝空間較小的地方。
GXF系列斜流通風機按葉輪直徑分為300—1400mm十六種規格,按類型分A、B、C、D、巨、F、S七種類型,共五十八個機號。風量由1500—90000m’巾,全壓由185-2500pa;
GXF系列型號說明:
GXF-BX 鋼制斜流式加消聲風機
GXF-S 鋼制斜流式雙速風機
二、型號說明
三、性能參數表
GXF-Ⅰ型
GXF-Ⅰ型
|
|
||||||||||||||||||||||||||||||||||||||||||||||||||||||||||||||||||||||||||||||||||||||||||||||||||||||||||||||||||||||||||||||||||||||||||||||||||||||||||||||||||||||||||||||||||||||||||||||||
GXF-Ⅱ型 | |||||||||||||||||||||||||||||||||||||||||||||||||||||||||||||||||||||||||||||||||||||||||||||||||||||||||||||||||||||||||||||||||||||||||||||||||||||||||||||||||||||||||||||||||||||||||||||||||
|
|
||||||||||||||||||||||||||||||||||||||||||||||||||||||||||||||||||||||||||||||||||||||||||||||||||||||||||||||||||||||||||||||||||||||||||||||||||||||||||||||||||||||||||||||||||||||||||||||||
二、型號說明 |
|
|
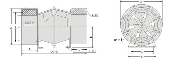
四、GXF-Ⅰ型風機外形尺寸表(單位:mm)

機 號
|
D
|
D1
|
D2
|
D3
|
L1
|
L2
|
L
|
A
|
B
|
H
|
n-Φ1
|
4-Φ2
|
2
|
200
|
240
|
260
|
350
|
160
|
280
|
320
|
110
|
160
|
190
|
6-Φ6.5
|
Φ10.5
|
2.5
|
250
|
290
|
310
|
420
|
195
|
350
|
390
|
150
|
200
|
230
|
6-Φ6.5
|
Φ10.5
|
3
|
300
|
340
|
360
|
470
|
195
|
350
|
390
|
190
|
240
|
260
|
6-Φ6.5
|
Φ10.5
|
3.5
|
350
|
390
|
410
|
550
|
250
|
460
|
500
|
230
|
280
|
290
|
8-Φ8.5
|
Φ12.5
|
4
|
400
|
440
|
460
|
610
|
250
|
460
|
500
|
270
|
320
|
330
|
8-Φ8.5
|
Φ12.5
|
4.5
|
450
|
490
|
510
|
660
|
265
|
490
|
530
|
300
|
360
|
350
|
8-Φ8.5
|
Φ12.5
|
5
|
500
|
550
|
570
|
750
|
315
|
590
|
630
|
300
|
460
|
390
|
8-Φ8.5
|
Φ12.5
|
6
|
600
|
650
|
680
|
870
|
350
|
650
|
700
|
420
|
500
|
460
|
10-Φ10.5
|
Φ14.5
|
7
|
700
|
750
|
780
|
903
|
350
|
650
|
700
|
500
|
600
|
480
|
10-Φ10.5
|
Φ14.5
|
8
|
800
|
850
|
880
|
1120
|
450
|
850
|
900
|
580
|
700
|
580
|
10-Φ12.5
|
Φ14.5
|
五、XGXF-Ⅰ型加消音風機外形尺寸表(單位:mm)

|
|
||||||||||||||||||||||||||||||||||||||||||||||||||||||||||||||||||||||||
注:XGXF-Ⅰ型風機進出口加設消聲器,可消聲6-10dB(A),亦可加長消聲器,以降底更大數值的噪聲。 |
六、GXF-Ⅱ型風機外形尺寸表(單位:mm)

機 號
|
D1
|
D2
|
L
|
H
|
M1
|
M2
|
M3
|
M4
|
Φ1
|
4
|
410
|
470
|
450
|
270
|
300
|
340
|
200
|
300
|
Φ10.5
|
4.5
|
460
|
520
|
450
|
300
|
300
|
340
|
250
|
350
|
Φ10.5
|
5
|
510
|
580
|
500
|
320
|
340
|
380
|
300
|
400
|
Φ10.5
|
5.5
|
560
|
630
|
570
|
350
|
420
|
460
|
400
|
500
|
Φ14.5
|
6
|
610
|
690
|
570
|
380
|
420
|
460
|
400
|
500
|
Φ14.5
|
6.5
|
660
|
740
|
570
|
410
|
420
|
460
|
400
|
500
|
Φ14.5
|
7
|
710
|
790
|
600
|
430
|
440
|
480
|
500
|
600
|
Φ14.5
|
8
|
810
|
890
|
730
|
490
|
560
|
600
|
500
|
600
|
Φ14.5
|
9
|
910
|
990
|
800
|
560
|
600
|
660
|
600
|
700
|
Φ16.5
|
10
|
1010
|
1090
|
920
|
610
|
720
|
780
|
600
|
700
|
Φ16.5
|
11
|
1110
|
1260
|
1030
|
660
|
730
|
800
|
700
|
800
|
Φ16.5
|
12
|
1210
|
1310
|
1100
|
730
|
820
|
880
|
800
|
900
|
Φ16.5
|
13
|
1310
|
1410
|
1150
|
760
|
830
|
900
|
900
|
1000
|
Φ16.5
|
14
|
1410
|
1510
|
1230
|
800
|
930
|
1000
|
900
|
1000
|
Φ16.5
|
GXF-Ⅱ-A型低速、GXF-Ⅱ-B型外形尺寸表
GXF-Ⅱ-A型高速及雙速型外形尺寸表
機 號
|
Φ1
|
Φ2
|
L
|
H
|
M1
|
M2
|
M3
|
M4
|
4-Φ
|
4
|
410
|
470
|
500
|
270
|
340
|
380
|
200
|
300
|
Φ10.5
|
4.5
|
460
|
520
|
500
|
300
|
340
|
380
|
250
|
350
|
Φ10.5
|
5
|
510
|
580
|
530
|
320
|
340
|
380
|
300
|
400
|
Φ10.5
|
5.5
|
560
|
630
|
620
|
350
|
420
|
460
|
400
|
500
|
Φ14.5
|
6
|
610
|
690
|
720
|
380
|
520
|
560
|
400
|
500
|
Φ14.5
|
6.5
|
660
|
740
|
720
|
410
|
520
|
560
|
400
|
500
|
Φ14.5
|
7
|
710
|
790
|
740
|
430
|
540
|
580
|
500
|
600
|
Φ14.5
|
8
|
810
|
890
|
830
|
490
|
580
|
660
|
500
|
600
|
Φ14.5
|
9
|
910
|
990
|
850
|
560
|
620
|
680
|
600
|
700
|
Φ16.5
|
10
|
1010
|
1090
|
880
|
610
|
740
|
700
|
600
|
700
|
Φ16.5
|
11
|
1110
|
1210
|
1010
|
660
|
740
|
800
|
700
|
800
|
Φ16.5
|
12
|
1210
|
1300
|
1100
|
730
|
800
|
870
|
800
|
900
|
Φ16.5
|
13
|
1310
|
1410
|
1280
|
760
|
930
|
1000
|
900
|
1000
|
Φ16.5
|
14
|
1410
|
1510
|
1290
|
800
|
930
|
1000
|
900
|
1000
|
Φ16.5
|
注:GXF-Ⅱ型亦可加裝進出口消聲器,加裝方法同XGXF-Ⅰ型,一般可消聲6-10dB(A)。
非特殊說明,本文為本站原創(翻譯)文章,轉載請注明:本文轉自:江西鑫佳通科技股份有限公司。
本文連接:http://www.szlyedu.com/product/3124214158.html
想了解更多請點擊===>>斜流通風機 斜流風機 斜流式風機
上一個產品:SJG系列管道斜流式通風機(鼓形)
下一個產品:HL3-2A系列低噪聲高效節能混流式通風機
GXF系列管道斜流式通風機(直筒形)產品知識推薦
- SJG型低噪聲斜流風機 2020-09-04
- GXF斜流風機-高效低噪斜流風機是干什么用的? 2018-01-12
- 斜流風機的使用條件 2017-12-16
- 斜流風機全面解讀 2020-07-20
- 管道式斜流風機保養 2017-06-07
- 鼓式斜流風機的型號和特點? 2020-06-05
- 如何正確調試玻璃鋼斜流風機 2017-06-02
- 介紹目前國內風機產品應該怎么分類 2017-10-17
- 斜流通風機使用保養及維修方法是什么? 2017-11-19
- 管道斜流風機生產廠家 2017-06-19
- 合肥型斜流風機直銷 2017-06-26
- 許昌斜流風機批發價格 2017-08-05
- 信陽斜流風機哪家好 2017-06-30
- 南昌斜流風機專業廠家 2017-08-22
- 南寧斜流風機維護 2017-05-27
- 江西斜流風機生產廠家 2017-06-15
- 廣西斜流風機怎么樣 2017-07-25
- 忻州型斜流風機直銷 2017-06-26
- 安順低噪聲斜流風機銷售 2017-06-30
- 臨汾型斜流風機哪里好 2017-06-30
相關評論: